您现在的位置: 首页 >> 交易信息 >> 合肥市产权交易中心

项目编号:

项目名称:

合肥市轨道交通3号线幼儿师范站附属用房

S2商铺)出租项目公告

项目名称

合肥市轨道交通3号线幼儿师范站附属用房(S2商铺)出租

项目编号

2021BFFCJ00529

委托方

合肥市轨道交通集团有限公司

委托方承诺

委托方承诺本次转让行为已履行了必要的审批程序,保证本公告的内容不存在任何重大遗漏、虚假陈述或严重误导,并对其内容及所提供资料的真实性、完整性和准确性负责。

交易监督部门

合肥市轨道交通集团有限公司纪委纪检监察室

联系电话:0551-62662852

公告期限

公告期: 2021年629日9:00始至2021年719日17:00止。

一、出租标的情况

出租标的

所在层数

结构

建筑面积

租期

租金底价

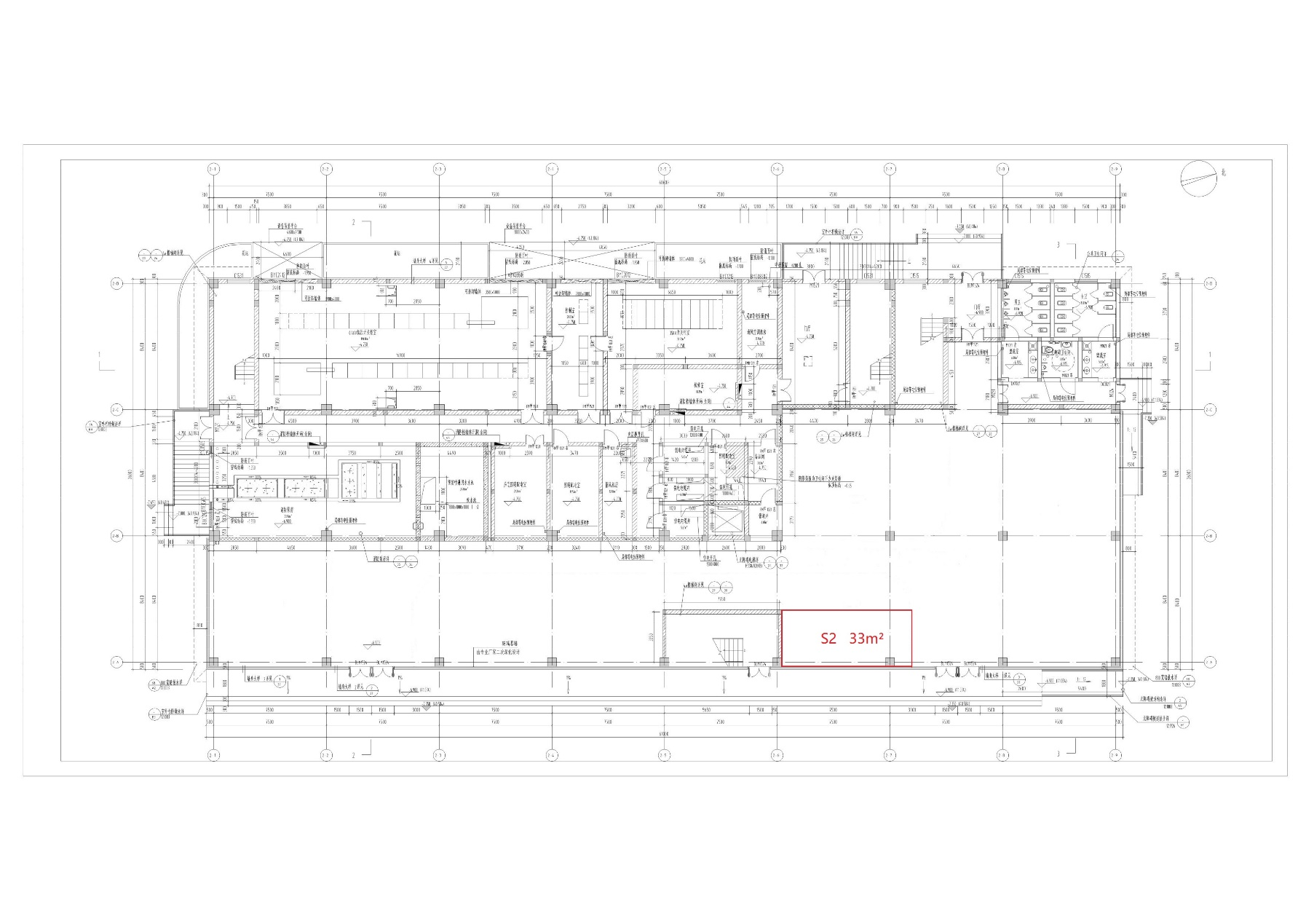
合肥市轨道交通3号线幼儿师范站附属用房(S2商铺)

地上一层

框架

33㎡

6年(以委托方移交租赁场地次日起满3个月的次日起开始计算租期)

2.35224万元/年

1.标的坐落位置:合肥市新站区学林路与文忠路交叉口。

2.标的权属情况无房地产权证明,无土地使用权证明租赁标的无权属纠纷,委托方将提供该处标的租赁证明,方便承租人办理相关证照。

3.合肥市轨道交通3号线幼儿师范站附属用房(S2商铺)位于3号线幼儿师范站附属用房地上一层,建筑面积约33平方米(图纸测量面积),地上一层墙面白色涂料,室内地面铺设地砖,目前处于空闲状态。

房屋租赁用途要求

1.  租赁房屋的用途为便利店或零售禁止出售存储易燃易爆、有毒有害及法律禁止的产品。

最终承租人的经营业态须书面向委托方申请备案,经委托方同意后方可营业。

2. 承租人使用上述房屋必须符合相关法律法规要求,如需获得消防等部门许可的,由承租人自行办理并承担相关一切费用和责任。如由造成承租人不能按预想的方案使用房屋并导致租赁合同不能履约的,责任由承租人承担。

租金及履约保证金支付

1.  租金采取“先支付后使用”原则,按年支付。承租人须在合同签订后10日内向委托方缴付第一年租金,每年租期届满前60日,预付下年度租金。第一、第二、第三年每年实际租金均为首年成交价,第四、第五、第六年每年实际租金均在首年成交价基础上增长10%。

2.本项目给予免租金装修期3个月,免租金装修期以委托方移交租赁场地后次日起开始计算,免租金装修期不含在租赁期内。免租金装修期包含但不限于承租人对承租范围内的装修设计、施工报审、实施施工、施工验收等一系列装修工作和手续办理,并由承租人自行承担在此期间所产生的一切费用(包含但不限于垃圾清运费、水费、电费及其能耗费等)。

3.履约保证金为成交后首年前3个月实际租金之和,承租人须在合同签订前以转账的方式或具备委托方格式条款的银行履约保函向委托方缴纳履约保证金,承租人向委托方缴纳的履约保证金在合同终止且无承租人责任后无息退还。承租人在合同期内发生违约违法行为的,委托方有权直接从履约保证金中扣除承租人应付的违约金和费用,承租人须在5日内补足履约保证金。

注:上述费用具体缴纳方式详见《租赁合同》。

二、对意向承租人资格的要求

(一)符合下列条件,并具有完全民事行为能力的境内企事业法人、其他组织,除法律另有规定外,均可参与竞价。

1.符合下列情形之一的:

(1)公告截止日前两年内未被合肥市及其所辖县(市)公共资源交易监督管理部门记不良行为记录或记不良行为记录累计未满10分的。

(2)最近一次被合肥市及其所辖县(市)公共资源交易监督管理部门记不良行为记录累计记分达10分(含10分)到15分且公布日距公告截止日超过6个月。

(3)最近一次被合肥市及其所辖县(市)公共资源交易监督管理部门记不良行为记录累计记分达15分(含15分)到20分且公布日距公告截止日超过12个月。

(4)最近一次被合肥市及其所辖县(市)公共资源交易监督管理部门记不良行为记录累计记分达20分(含20分)及以上且公布日距公告截止日超过24个月。

2.截至招标公告发布日前两年内,意向承租人(包括法人为同一人或存在控股、管理关系的不同单位)均未与合肥市轨道交通集团有限公司存在合同违约情况。

3.意向承租人须具有不少于40家正在营业的直营网点(不含境外网点)。

(二)本项目不接受自然人及联合体参与

三、承租条件

1.意向承租人应在本公告期截止前现场踏勘出租标的,就出租标的相关情况主动向委托方咨询,自行了解使用该房屋可能涉及的相关法律法规及市政规定;完成交易主体库登记的意向承租人都视同已实地踏勘出租标的,确认了标的范围、面积并认可租赁要求等,自愿承担因上述原因导致的一切后果和法律责任。

2.公告所列示的标的建筑面积仅作参考,最终以标的实际移交面积为准。标的实际移交面积与本公告所列示建筑面积不符的,不调整成交价格。出租面积之外的建筑物、附属物(如道路、绿化、空地、停车场等)均不在出租范围内,委托方不提供任何承诺及服务。

3.租赁期内,租赁场地必须由承租人直接经营,经营范围须按照委托方要求,不可违规经营,未经委托方书面同意, 不得对该租赁场地及设施设备进行任何形式的转租、分租、转让、转借、调换、合作经营或联营,不得将该租赁场地及设施设备对外实施抵押、担保、处分,否则委托方有权责令承租人停业整改,若承租人未按委托方要求及时整改的,委托方有权终止合同收回租赁房屋,且承租人缴纳的履约保证金及已缴付租金不予退还。

4.租赁期内,承租人负责租赁场地的日常安全管理、设施设备养护维修维保等工作(含对租赁场地内部墙体屋面及管道渗漏破损等维修)并承担相应费用,委托方给予协助配合。

5.承租人自行承担在承租期间产生的水、电、通讯(网络)、垃圾清运、日常维修等相关费用。

6.租赁期间通信、网络系统由承租人自行接入、安装及使用,费用自理。

7.租赁期内,承租人负责承担租赁场地的装修装潢、设施设备安装等工作及其费用。装修施工前,装修、装潢方案须报委托方备案同意,且装修、装潢不得改动或破坏建筑主体结构。如擅自改动或破坏建筑主体结构,承租人应立即恢复原状,给委托方或第三人造成的损失应由承租人承担赔偿责任。承租人如需增加电容量,改造用电线路,须向委托方提出书面申请,经委托方同意后方可施工,并承担全部责任与费用。

8.装修过程中, 装修材料应符合现行的国家标准消防要求,承租人自行办理消防报验,委托方有权对承租人使用产品进行检查和抽查,如发现有质量问题的,要及时落实整改,杜绝采购无证或伪造、冒用认证证书、无厂名、厂址等来源不明和不合格商品,一经发现须及时整治。如情节严重的,将移交司法机关处理并终止合同。

9.本项目委托方仅基于现有条件移交,租赁场地内剩余一切设施需要安装或更换的(如内部装修、玻璃隔断、卷帘门、配电箱、灯具插座等),由承租人向委托方申报,经委托方同意后方可自行安装或更换,费用自理。

10.租赁场地内的水、电等为有偿使用,按政府有关部门规定的商业收费标准计算费用。承租人须自行安装独立的水、电表,确保水、电表为供水、供电部门指定产品并提供相关合格证书,安装及其费用由承租人自行承担,安装完经委托方验收合格后方可使用,租赁期内水、电费按抄表数参照委托方相关管理规定进行收取。

11.租赁场地范围内废弃物由承租人自行清理。

12.本项目委托方仅提供租赁场地,承租人自行办理消防报验、审批,工商、卫生等所有相关手续,费用自理,委托方协助配合。

13.承租人在完成开业准备工作后,如需消防等部门验收审批的,由承租人自行办理,若最终消防部门因非承租人原因要求取消其经营活动的,经委托方同意后承租人可办理退租手续,委托方不承担任何责任。

14.上述租赁场地的租赁费用不包含物业管理费(物业管理由承租人自行负责),租赁场地的面积、接入条件、交付时间最终以委托方实际交付标的物为准,委托方不承担违约责任。

15.若因轨道交通建设或运营需要或政府相关部门条令、政策等因素调整租赁场地(含增加或减少租赁面积或者取消租赁场地),委托方有权决定使用分配方案,承租人须无条件接受,且委托方不承担任何违约责任租金费用调整按合同相关条款执行。

16.《租赁合同》期满或终止时,承租人须将租赁场地在合同终止后10日内按委托方要求交还委托方,且不得提出任何补偿要求。

17.承租人应在《成交确认书》出具之日起 30日内与委托方签订租赁合同。合同生效后交易双方须按照合同约定办理备案手续。

18.其他未尽事宜详见所附《租赁合同》。

19.除了特殊说明外,本项目中“日”均指日历天。

四、承租人的确定方式

本项目采取资格审查后一次性报价(以报价单为准)的方式进行,遵循有效最高价成交的交易原则,分两阶段进行。

第一阶段  资格审查材料评审

1.合肥市产权交易中心受委托方委托组建该项目评审委员会。由评审委员会对意向承租人的资格审查材料进行审查。评审委员会成员对意向承租人某项资格审查材料如有不同意见,按照少数服从多数的原则,确定该项资格审查材料是否通过。如意向承租人提交的资格审查材料中有一项未通过,则视为资格审查不通过。格审查材料中存在不明确、同类问题表述不一致、前后矛盾、有明显文字错误的内容等情况,评审委员会可以以书面的方式告知并要求意向承租人以书面方式进行必要的澄清、说明。意向承租人的澄清、说明应当由法定代表人或其授权代表签字或者加盖公章。意向承租人不得主动要求澄清、说明。

2.资格审查材料评审期间,意向承租人不得离开资格审查材料递交现场,并保持手机畅通,资格审查委员会随时可能要求意向承租人进行澄清说明。

第二阶段 开启一次性报价单

资格审查评审结束后,对通过资格审查的意向承租人,由现场监督人员开启其一次性报价单,并由项目负责人公开宣读意向承租人报价,评审委员会对报价有效性进行审查,并按从高到低的顺序对意向承租人的有效报价进行排序,有效报价最高者确定为承租人。未通过资格审查的意向承租人,其报价单不予开启,原封退还意向承租人。

1.如产生1家合格意向承租人的,则按意向承租人的报价(不得低于租赁底价)确定承租人。

2.如产生2家及2家以上合格意向承租人的,以价高者得的方式确定承租人。如最高报价相同按下述情况处理:

(1)如报价相同的意向承租人中有优先承租权人的,则同等价格下,优先承租权人确定为承租人;

(2)如报价相同的意向承租人中无优先承租权人的,以抽签的方式确定其前后次序。(抽签办法:抽签分两轮进行。第一轮最高报价人按照意向承租人签到表序号顺序进行抽签,确定抽签顺序号;第二轮按照抽签顺序号顺序进行抽签,确定最高报价排名顺序,排名顺序第一的最高报价人确定为承租人)

3.项目成交后因故不能签订合同的,不予替补,重新公开招租。

五、意向承租人参与方式

交易保证金支付

金额

5000

支付方式

意向承租人须于本项目公告期限内,通过本单位账户采取本地转账、异地电汇(均应提交加盖银行转讫章的回单)的形式向合肥市产权交易中心指定账户汇入交易保证金(收款单位:合肥市产权交易中心;开户银行:中国光大银行合肥阜南路支行;账号:76700188004098682),并至合肥市滨湖新区南京路2588号合肥要素市场A区合肥公共资源交易中心二楼服务大厅财务窗口换取合肥市产权交易中心往来结算收据。意向承租人不得以现金形式缴纳,不得由他方代为缴纳交易保证金。

意向承租人须递交的资格审查材料及报价单

(一)意向承租人应根据要求制订资格审查材料,包含但不限于以下内容:

1.主体资格证明文件:

(1)营业执照副本复印件;

(2)法定代表人身份证复印件;

(3)意向承租人认为必要的其他证明资料。                                           

2.委托代理人的身份证明材料复印件及授权委托书原件(需按附件规定格式提交)。

3.承诺函(需按附件规定格式提交)。

4.保证金支付凭证(合肥市产权交易中心出具的往来结算收据)及退还保证金声明函(需按本公告中附件规定格式提交)。

5.直营网点清单(格式见附件)。

6.根据直营网点清单顺序依次提供各直营网点的营业执照副本复印件或影印件以及各直营网点的租赁合同。

注:1.直营是指,网点由意向承租人或其分公司或其全资子公司开立,其中为全资子公司的,还应提供股权关系证明国家企业信用信息公示系统网站截图(www.gsxt.gov.cn)或行政主管部门出具的证明材料

2.直营网点使用的房屋为意向承租人或其分公司或其全资子公司自有的,需另附房屋产权证明材料。

以上材料为复印件的,需加盖意向承租人公章。各项材料须按顺序排列,打印目录并装订成册。

(二)报价单(报价单需按本公告中规定格式提交(附件7),报价单须加盖意向承租人公章并单独封装。

资格审查材料与报价单的递交

((一)资格审查材料

1.数量:意向承租人须提交一式三份资格审查材料,其中正本一份,副本两份(正本和副本如有差异,以正本为准)。

2.签署:资格审查材料的正本和副本须加盖意向承租人公章。每份资格审查材料的封面注明“正本”或“副本”字样。

3.封装:资格审查材料密封包装。

4.标记:包装上标注“合肥市轨道交通3号线幼儿师范站附属用房(S2商铺)出租项目资格审查材料”字样并清楚标明意向承租人的名称及联系方式,同时加盖意向承租人公章(格式参考附件)。

注:资格审查材料中不得含报价。

(二)报价单

1.数量:意向承租人须提交一份报价单(正本)。

2.签署:加盖意向承租人公章。

3.封装:报价单须单独密封包装。

4.标记:包装上标注“合肥市轨道交通3号线幼儿师范站附属用房(S2商铺)出租项目报价单”字样并清楚标明意向承租人的名称及联系方式,同时加盖单位公章(格式参考附件)。

注:如果未按上述规定签署或标记,合肥市产权交易中心将不承担资格审查材料及报价单错放或提前开封的责任,并可能导致资格审查材料及报价单无效。

(三)资格审查材料及报价单的送达

1送达时间:北京时间 2021720日09:30--10:00(以本项目资格审查材料及报价单接收地点悬挂的电子显示屏显示时间为准)。

2.送达地点:合肥市滨湖新区南京路2588号(徽州大道与南京路交口)安徽合肥公共资源交易中心三楼12号开标室。

在本公告要求提交资格审查材料的截止时间之后送达或未封装的资格审查材料及报价单, 合肥市产权交易中心将拒绝接收。

意向承租人在递交资格审查文件和报价单后,可在规定送达截止前以书面形式撤回。在文件送达截止时间后,意向承租人不得再要求撤回资格审查文件和报价单。

六、竞价结束后相关程序

成交公告及《成交确认书》

竞价结束且无异常情况,合肥市产权交易中心将在网站上发布成交公告。

《成交确认书》领取时间:成交公告发布次日起3个工作日内;

《成交确认书》领取地址:合肥市滨湖区徽州大道4872号金融港中心A9幢安徽公共资源交易集团4楼;

《成交确认书》领取要求:承租人为企事业单位的须派专人携带单位介绍信(或公司授权书)和本人身份证。

交易保证金处置

1.公告期限届满,按规定程序和要求确定承租人后,承租人缴纳的交易保证金扣除交易服务费后的剩余款项可转为首期租金,其他意向承租人缴纳的保证金在确定承租人后5个工作日内原额原途径返还(不计息)。

2.保证金只退还至意向承租人缴款账户。因收款人与意向承租人名称不一致造成的交易保证金无法退还或迟延退还,合肥市产权交易中心不承担任何责任。

3. 经监督部门调查认定出现下列情形之一的不良行为,交易保证金不予返还,交易保证金扣除交易双方交易服务费后,余款转至委托方指定的账户。

(1)意向承租人提供虚假材料,骗取成交资格或实现其他非法目的;

(2)意向承租人之间相互串通的;

(3)意向承租人采取不正当手段影响和干扰其他意向承租人参与交易活动的;

(4)承租人无正当理由放弃成交资格的;

(5)承租人未按交易文件约定交纳履约保证金或签定《租赁合同》的。

4.承租人存在上述第3项中任一行为的,承租人除承担上述第3项交易保证金不予返还的规定外,承租人还须承担项目成交价金额的20%赔偿出租方的损失因承租人存在上述行为发生的纠纷,双方同意任一方均有权向甲方所在地有管辖权的人民法院提起诉讼解决。

异议方式

若对成交公告有异议,可自成交公告发布次日起3个工作日内,以书面形式向合肥市产权交易中心提出异议,异议材料递交地址:合肥市滨湖新区南京路2588号合肥要素市场A区677室,联系电话:0551-66223642。

(一)异议应以书面形式实名提出,书面异议材料应当包括以下内容:

1.异议人的名称/姓名、地址、有效联系方式;

2.项目名称、项目编号、标的号(如有);

3.被异议人名称/姓名;

4.具体的异议事项、基本事实及必要的证明材料;

5.明确的请求及主张;

6.提起异议的日期。

异议人为自然人的,应当由异议人本人签字并附有效身份证明;异议人为法人或者其他组织的,应当由法定代表人或其委托代理人(需有委托授权书)签字并加盖公章。

异议人需要修改、补充异议材料的,应当在异议期内提交修改或补充材料。

(二)有下列情形之一的,不予受理:

1.提起异议的主体不是所异议项目竞价人的;

2.异议材料不完整的;

3.异议事项含有主观猜测等内容且未提供有效线索、难以查证的;

4.异议事项已进入投诉处理、行政复议或行政诉讼程序的。

(三)若异议人对异议处理意见有异议,可在答复期满后7个工作日内以书面形式向交易监督部门提出投诉。

交易服务费收取

交易服务费收取标准为首年成交月租金的10%,不足500元的,按500元收取。

七、其他说明

其他说明

1.意向承租人可在公告截止之前工作时间内至合肥市产权交易中心项目负责人处查阅委托方向合肥市产权交易中心提供的相关项目材料。上述材料均为参考性意见,不构成合肥市产权交易中心对出租标的的任何担保责任。

2.对本项目公告内容要求澄清或有异议的意向承租人,应于公告截止日前3个工作日前,以书面形式向合肥市产权交易中心提出,逾期递交的不予受理。

3.合肥市产权交易中心对本公告进行的澄清、更正或更改,将在网站上及时发布(网址:http://ggzy.hefei.gov.cn),该公告内容为出租公告的组成部分,对意向承租人具有约束力。意向承租人应主动上网查询。合肥市产权交易中心不承担意向承租人未及时关注相关信息的责任。

4.在公告截止时间前,合肥市产权交易中心可以视具体情况,延长公告截止时间,并在网站上发布变更公告。

八、联系方式

现场踏勘

联系人:高工;联系电话:0551-62662721

项目负责人

联系人:江工,联系电话: 0551-66223293、66223918(合肥市滨湖新区徽州大道4872号金融港中心A9幢安徽公共资源交易集团)

本项目意向承租人如需咨询,务必首先认真阅读本项目公告,并针对具体条款进行咨询。本公告为本项目唯一法定文书,一切解释以本公告为准。本公告及其附件解释权归合肥市产权交易中心。

 

附件标的位置图示

 


合肥市产权交易中心


附件1:资格审查材料封面

 

 

合肥市轨道交通3号线幼儿师范站附属用房(S2商铺)出租项目

2021BFFCJ00529

资格审查材料

 

 

 

 

意向承租人名称:                   

 

意向承租人联系方式:               

 

意向承租人(盖章):                   

附件2:

法定代表人授权委托书

 

致:合肥市产权交易中心

本授权书声明:注册于                           (公司住所)的                     (公司名称)的法定代表人        (法定代表人姓名)代表本公司授权        (代理人的姓名)为公司的合法代理人,就贵方组织的合肥市轨道交通3号线幼儿师范站附属用房(S2商铺)出租项目(项目编号:2021BFFCJ00529)的意向承租人资格审查、竞价、合同的签订,以本公司名义处理一切与之有关的事务。

 

本授权书于            日签字生效,特此声明。

 

意向承租人(盖章):                                

法定代表人(签字):                                

法定代表人身份证号码:                             

代理人姓名:        性别:    年龄:    职务:      

身份证号码:                                        

联系方式                                          

 

 

 

 

 

附件3:

退还保证金声明函

致:合肥市产权交易中心

 

我方为合肥市轨道交通3号线幼儿师范站附属用房(S2商铺)出租项目(项目编号:2021BFFCJ00529)项目所提交保证金人民币         元(大写:                )已于          日以银行主动划账方式划入你方账户。附件为贵中心出具的往来结算收据(复印件加盖意向承租人公章)。

退还保证金时请按以下账户退还我方。若由于内容不全、内容错误导致竞买保证金未能及时退还或退还过程中发生错误,其责任和损失由我方全部承担。

单位全称:                                        

开户银行:                                        

开户账号:                                        

 

意向承租人(盖章):                      

法定代表人或委托代理人(签字):          

 

联系人:                                 

 话:                                 

       

 

注:意向承租人指定的收款账户须为意向承租人本单位账户。

 

 

 

附件4:

致:合肥市产权交易中心

 

我方为对转让公告表示完全响应,遵照转让公告的要求,特此确认并承诺:

1.我方确认,我方已仔细阅读并研究了贵方的《合肥市轨道交通3号线幼儿师范站附属用房(S2商铺)出租项目公告》及其附件,我方完全熟悉并遵循其中的要求、条款和条件,充分了解标的情况。

2.我方确认,我方完全同意转让公告制定的交易规则。

3.我方保证:我方为参与本项目所提供的材料均为真实、合法、完整,否则承担由此引起的一切经济责任和法律责任。

4.我方承诺,完全知晓并接受转让公告及所附经营权转让合同条款的全部内容,我方自该项目《成交确认书》出具之起30日内与委托方签订合同。如因我方原因导致合同未在规定期限内签订,贵方有权扣除我方已缴纳的保证金作为违反本承诺的违约金。

5.我方承诺,截至公告发布日前两年内,我方(包括法人为同一人或存在控股、管理关系的不同单位)均未与合肥市轨道交通集团有限公司存在合同违约情况。

6.我方承诺,截至资格审查日,我方提供的直营网点经营范围均处于正常运营状态,如有虚假,我方承担由此引起的一切经济责任和法律责任。

 

特此承诺。

 

 

意向承租人(盖章):                      

法定代表人或委托代理人(签字):          

 址:                                 

联系人:                                 

 话:                                 

      


附件5:直营网点列表清单

 

 

直营网点业绩清单

 

直营网点列表清单

序号

直营网点名称

地址

联系电话

1

 

 

 

2

 

 

 

3

 

 

 

 

 

 

40

 

 

 

 

注:直营网点列表清单中直营网点名称须与意向承租人提供的直营网点材料一致,否则可能导致资格审查不通过。


附件6:报价单封面

 

合肥市轨道交通3号线幼儿师范站附属用房(S2商铺)出租项目

2021BFFCJ00529

报价单

 

意向承租人名称:                   

 

意向承租人联系方式:               

 

意向承租人(盖章):                   

 

 

 

 

附件7

项目名称

合肥市轨道交通3号线幼儿师范站附属用房(S2商铺)出租项目

项目编号

2021BFFCJ00529

意向承租人全称      

 

最终报价

(人民币)

                   元/年

注:

1、最终报价不得低于租金底价,报价精确到元。

2、报价单中最终报价为首年租金,租期内的租金递增情况按公告要求执行。

3、如表中填写多个报价,报价无效。

4、请书写工整、清晰、准确。

5、请将此报价单加盖公章后按公告要求单独密封包装。

 

 

      


附件8:

租赁合同

 

甲方(出租方合肥市轨道交通集团有限公司 

乙方(承租人                       

 

1条  总则

    根据相关法律法规和安徽省、合肥市轨道交通管理法规、规章和规范性文件等有关规定,在乙方充分理解轨道交通车站为特殊经营环境的前提下,经甲乙双方协商一致,签订本合同。

2条 租赁标的物的定义及基本情况

2.1租赁标的物定义。本合同约定的附属用房(S2商铺)是指:合肥市轨道交通3号线幼儿师范站附属用房地上一层范围内的租赁场地S2具体位置范围详见附件。

2.2 甲方同意将合肥市轨道交通3号线幼儿师范站附属用房(S2商铺),建筑面积约_平方米(最终面积以实际交付为准)租赁给乙方,按现状(详见移交表)租赁给乙方作为经营场地。

2.3 乙方签约前已到租赁场地的现场实地查勘,对租赁场地的状况进行了充分了解,自愿按租赁场地的现状和本合同的约定承租。

2.4乙方经营范围必须符合法律法规的规定并办理经营许可证后方可营业。乙方的经营方案及经营范围报甲方备案,甲方有权视轨道交通运营情况要求乙方调整经营方案及经营范围。乙方经营范围的新增、经营业态的变更,必须经甲方审核同意后方可实施。

2.5若因轨道交通建设或运营需要或政府相关部门条令、政策等因素调整租赁场地的(含增加或减少租赁面积或者取消租赁场地),甲方有权决定使用分配方案,乙方无条件接受且甲方不承担任何违约责任若调整面积的,则方成交价进行租金调整(结算依据:调整部分场地结算价格=成交年租金×调整部分场地对应的建筑面积/成交面积)。

3条 租赁期限及租赁场地的交付

3.1乙方所租赁的场地租赁期限共6年,自             日至               日(最终以甲方移交标的物次日起满3个月的次日起开始计算租金(即免租金装修期3个月)),租赁场地装修完成后开业前乙方须向甲方提出开业申请,经甲方同意后方可营业。甲方有权根据租赁场地的实际情况确定交付日期。

3.2甲方将租赁场地交给乙方,乙方应按时接收租赁场地,并由甲、乙双方办理租赁场地交接手续,乙方无故不按期办理的,甲方有权解除本合同,所收履约保证金及已缴付租金不予退回。甲乙双方办理完租赁场地交接手续后,租赁场地由乙方进行接管,租赁场地内的日常卫生、安全等运营维护、秩序维护由乙方负责,甲方有监督、指导及要求整改的权利。

3.3由于轨道交通建设或运营需要或政府相关部门条令、政策等因素导致租赁场地无法正常交付,甲乙双方可根据事实情况另行确定该租赁场地的交付条件、交付日期,同时该租赁场地的租赁期限、计租时间顺延,甲方不承担任何责任。

4条  费用及支付

    4.1 乙方所租赁的场地,首年租金人民币大写:       元(小写:       )。第一、第二、第三年每年实际租金均为首年成交价,第四、第五第六年每年实际租金均在首年成交价基础上增长10%。即:

租赁期

年递增率

租金金额(元)

第一合同年

/

 

第二合同年

/

 

第三合同年

/

 

第四合同年

10%

 

第五合同年

/

 

第六合同年

/

 

合计

 

 

4.2租赁场地位置、面积、接入条件、交付时间最终以甲方实际交付为准。

4.3乙方须在本合同签订前向甲方缴付履约保证金(首年前3 个月实际租金之和)人民币大写:     元(小写:            。如乙方在合同期内无任何违约违法行为,合同期满或因不可抗力、法律政策变化致使合同无法履行,或协商终止后,待乙方结清应缴费用后,履约保证金由甲方无息退还给乙方。如乙方在合同期内发生违约违法行为,甲方有权直接从履约保证金中扣除乙方应付的违约金和费用,乙方须在5日内补足履约保证金。

4.4乙方须接受甲方和/或甲方指定的管理公司的统一管理,租金采取“先付后用”原则,每计费周期按年计算。乙方须在本合同签订后10日内向甲方缴付第一期租金人民币大写:      元(小写         )。乙方须在每年租期届满前60 日预付下年度租金,甲方出具相应的票据。

4.5 租赁场地的水、电等为有偿使用,费用由乙方自行承担,按政府有关部门规定的商业收费标准计算费用。租赁场地内须安装独立的水、电表,安装及其费用由乙方自行承担,安装完经甲方验收合格后方可使用,租赁期内水、电费按抄表数参照甲方相关管理规定进行收取。

4.6租赁期间通信、网络系统由乙方自行接入、安装及使用,费用自理。

4.7双方因签订和履行本合同而应当缴纳的税费,根据法律规定由双方各自依法承担。

5条 租赁场地交付及进场装修

   5.1甲方应及时将该租赁场地及其附属设施交乙方使用,场地按现状交付,双方在交付时签署交付确认文件。乙方应在接到甲方通知后即时办理交接手续,若乙方在甲方通知交铺后7日内尚未办妥收铺手续,则甲方有权提前收回该场地、单方面解除本合同并不予退还履约保证金、租金等所有已缴费用。

5.2 乙方应自甲方交付场地后尽快实施开业准备工作,装修材料应符合现行的国家标准消防要求,乙方自行办理报建、消防报验、审批等所有相关手续,产生的一切费用由乙方自行承担,甲方协助配合。承租人在完成开业准备工作后,如需消防等部门验收审批的,由乙方自行办理,若最终消防部门因非乙方原因要求取消商业的,经甲方同意后乙方可办理退租手续,甲方不承担任何责任。装修完成后乙方须向甲方提出开业申请,经甲方同意后方可营业,否则一切后果由乙方承担。

5.3 乙方应在装饰装修前(包括再次装修)向甲方提交详细的设计施工计划、说明、图纸和效果图等资料,经甲方及政府相关部门(如需要)书面批准后方可开始装修,由此发生的政府相关部门审批等有关费用(若有)均由乙方承担。装修期间以及装修完成后甲方有权随时对装修情况进行检查,发现装修不符的,乙方应无条件整改并承担所有的费用及损失。

    5.4乙方应保证装饰装修使用的材料符合现行的中华人民共和国国家标准地铁设计规范及建筑内部装饰装修设计防火规范等有关安全质量要求。施工现场应严格按照《建设工程施工现场消防安全标准》加强施工现场消防安全监督管理,服从甲方现场统一施工管理。托方有权对乙方使用产品进行检查和抽查,如发现有质量问题的,要及时落实整改,杜绝采购无证或伪造、冒用认证证书、无厂名、厂址等来源不明和不合格商品,一经发现须及时整治。如情节严重的,将移交司法机关处理并终止合同。

    5.5 未经甲方书面同意,乙方不得改变或损坏该租赁场地的建筑主体结构、外墙部分、门头以及甲方提供的任何设施设备(包括专用设施设备和公用设施设备)。乙方不得擅自改变该租赁场地相关设施(包括但不限于楼道、通道、大门、走廊、设备用房)的设计用途,亦不得采用封堵或阻挡等任何方式妨碍其使用。对于设置于租赁场地内或通过该租赁场地的设施设备,乙方应当给予充分的注意和保护。

    5.6 乙方承诺对装修设计文件自行承担全部责任,在装修过程中服从甲方及政府相关部门的管理和指挥,并按照甲方的规定缴纳装修相关费用,包括但不限电费及其能耗费等。如乙方对该租赁场地进行装饰装修造成甲方或第三方损失,由乙方自行负责全部赔偿。乙方须在甲方指定时间范围内进行租赁场地装修,不得影响他人。

    5.7 乙方违反本合同约定的各项要求对该租赁场地进行装饰装修的(包括但不限于未经甲方批准,乙方擅自变更装修设计方案的情形),甲方有权要求乙方改正。甲方按其对建筑物的妨碍或损害程度,有权对乙方做出下述决定:(1)立即停工,(2)即时整改,(3)停止水、电等供应,(4)没收履约保证金、收回该租赁场地、终止合同,因此而发生的一切损失和费用均由乙方承担。

    5.8 乙方承租的该租赁场地不得遮挡火灾报警探测器、自动喷水系统喷头、消防排烟口、指示牌、室内消火栓等消防设施,不得影响防火卷帘的启降。

    5.9 甲方负责向乙方提供以下接口(以实际能否提供为准);

    5.9.1 供电:容量    /    KW;

    5.9.2 供水:管径    /   

    5.9.3 排水:管径    /    

    5.9.4通讯:    /    

乙方自行承担因经营需要办理水电增容的责任和费用。

5.10 经乙方装修后该租赁场地的装潢、添附,在合同终止后,未形成附合的装饰装修物由乙方负责拆除,如拆除造成租赁场地毁损的由乙方负责恢复原状;已形成附合的装饰装修物乙方应按甲方要求进行交付,且乙方无权要求任何补偿,甲方不承担任何费用。动产及废弃物由乙方进行清理,否则应当交由甲方处置,产生的费用由乙方承担。

5.11 装饰材料、装修期间及竣工后如需经过政府相关部门验收的,乙方应自行报验并承担相关费用,验收合格后报甲方备案同意后方可投入使用。

6条  经营服务规范要求

    6.1 乙方须是在中华人民共和国工商行政管理部门注册,具有有效法人资格的企业。同时须向甲方提供与该标的招标时要求一致的有效证件,包括但不限于营业执照副本、法定代表人身份证、法人代表授权委托书、税务登记证、卫生许可证(如有)等与经营相关的证照资料的复印件。

    6.2 租赁期内,乙方保证已为其经营行为办理了所需的一切审批、批准和备案、授权等手续,未经甲方书面同意,乙方不得改变该租赁场地的用途,否则甲方有权要求乙方限期纠正,逾期不改的,甲方有权终止合同。

    6.3鉴于本租赁物为特殊标的,乙方不得超范围经营,不得违反安徽省、合肥市有关法律法规等相关要求。如要改变或增加上述经营范围,须经甲方的书面同意及在工商管理部门办理变更登记。乙方如擅自增加或变更经营范围,则视作违约并按合同约定承担违约责任。

    6.4 乙方保证在该租赁场地内遵守国家、地方及甲方有关的消防管理规定,未经甲方同意不使用易燃易爆、有毒有害材料,不堵塞或占用消防通道,执行公共区域禁止吸烟规定,配齐消防器具。

    6.5 乙方的经营行为必须符合轨道交通各项管理规定要求,经营范围的选择必须符合本合同约定要求并通过甲方审核备案,同时必须满足消防、环保、安防等相关管理部门的要求和国家相关的法律法规要求,并取得相应的资格证书。

6.6 乙方所经营的商品必须符合国家、省、市有关规定,严格规范商品进货流程,明确商品有合法来源。需要通过政府相关部门审批经营的商品、服务内容等应自行申报,并将批准材料报甲方审查备案。因违反相关规定及未通过审批而造成的一切后果和责任,由乙方全部承担,甲方不承担任何责任。

6.7 乙方经营的行业产品、商号、标识或提供的服务需要取得特殊行业专项批准的、乙方应取得相关的批准、代理权或经营销售许可等证明文件,并在租赁期间持续合法有效。

    6.8 租赁期间,乙方须配合甲方组织的相关推广活动,以保证轨道交通商业的对外统一风格和良好声誉。乙方同意甲方免费将其品牌(包括公司名称、商标及其图形、文字)合理用于举办的各类媒体宣传、活动推广等之用。

    6.9 乙方在经营期间不得在承租场地及轨道交通站内公共区域内大声叫卖、播放过大音量的宣传口号、音乐及做出影响其他商户利益或轨道交通站内运营秩序的行为,不得在租赁场地内使用音响设备设施。

6.10 未经甲方书面同意乙方不得占用公共区域及公共设施、设备或影响其使用功能,不得在场地外或其它任何公共部位张贴、张挂或展示任何广告、宣传标语、招牌、符号装饰、灯饰或其它任何物品。

6.11租赁及装修期间,产生的垃圾应及时自行清运出站或与有关部门协商处理,不得将垃圾堆放于站内垃圾桶或任一地点。乙方负责承租场地内及“门前三包”范围内的环境卫生、市容秩序、治理工作并承担相关费用,并按政府及有关部门的规定交纳卫生费、垃圾清运费等费用。如合肥市人民政府制定、发布新的有关安全生产、环境卫生以及合肥市轨道交通管理等方面的法律法规和规范性文件的,乙方应严格遵守相关规定。

6.12 乙方正常营业时间应服从甲方管理要求,营业期间若因消防检查不合格要求停止营业的,乙方应无条件服从,甲方不承担任何责任。

7条  双方的权利、责任及义务

    7.1甲方的权利、责任和义务

    7.1.1 甲方应在合同履约期正常营业时间内保证该场地经营期间的照明、供电、通讯等正常使用(突发事件或轨道交通运营调整检修除外)。

7.1.2 按时向乙方收取租金及其它应由乙方承担的费用。

    7.1.3 甲方保留在紧急情况时随时进入乙方承租场地进行观察、维修及保养固定资产和设施、设备的权利,以确保轨道交通安全可靠的运行,乙方有义务积极配合。

    7.1.4甲方根据有关法律法规制订的关于轨道交通相关管理规定,乙方须遵照执行。

7.2乙方的权利、责任和义务

 7.2.1 乙方保证接受并服从甲方的统一管理,随时无条件配合甲方检查。

7.2.2 乙方是该场地的经营管理者和直接责任者,甲方负责对乙方的日常管理进行监督,乙方应按月或季度向甲方提交经营报表,使甲方及时准确的了解乙方承租场地的实际经营状况。

7.2.3 乙方保证不从事任何可能阻碍、影响相邻区域内甲方或其他经营户合法权利的行为,或其他不合理干涉、扰乱甲方或其他经营户正常经营的行为。如乙方经营产生特殊气味或者噪音干扰等,乙方应当采取有效的措施加以消除整改。如乙方经营产生的特殊气味(包括油烟)或者噪音干扰等严重妨碍到轨道交通运营环境和周边经营户,且未根据甲方或有关部门的要求进行消除整改,经认定检测后,甲方有权单方解除合同,因此造成的损失由乙方自行承担。

 7.2.4 对于因乙方原因导致的水、烟等相关物质外泄或因乙方原因导致火灾、爆炸等危害公共安全事件或乙方有不良经营行为的,则乙方应赔偿因此给甲方及第三方造成的损失。本款内所述乙方的责任同样适用于乙方工作人员。

7.2.5 乙方所租赁场地的安全、保卫、消防、卫生、防盗等工作由乙方自行负责,甲方协助配合且不因此承担任何责任。因第三方原因导致乙方商品、货物或其他财产发生损害,或导致乙方蒙受损失的,乙方自行向第三方索赔,甲方不承担任何责任。乙方正常营业时间应向甲方报备,经甲方同意后严格执行。在营业时间不得出现空铺或中途歇业或停业或私自撤柜等情形,不得在非营业时间容留其它人员。如有特殊时间需求,须经甲方认可。如乙方未经甲方同意而出现上述行为时,一律视为乙方违约,甲方有权随时提前终止本合同。

7.2.6 租赁期内,未经甲方书面同意,乙方不得对该租赁场地及设施设备进行任何形式的转租、分租、转让、转借、调换、合作经营或联营,不得将该租赁场地及设施设备对外实施抵押、担保、处分,否则视为严重违约。

7.2.7 乙方在经营中应严格遵守国家有关政策、法令,按时向国家各主管部门缴纳税金、工商管理费等各类费用,按时向甲方缴纳本合同约定的各类费用。

7.2.8 乙方在经营活动中必须严格执行公安、消防、工商、税务、卫生防疫部门及国家其它有关行政部门的法规,根据国家安全生产法要求,建立安全生产管理制度,对承租范围内的一切经营活动负安全生产责任,如有违反,乙方须承担全部经济、法律、行政责任,并承担甲方因此而产生的法律责任。甲方有权对乙方的经营活动进行定期检查,发现经营活动中有违法违规及安全隐患问题的,乙方接到甲方通知后应及时整改。

7.2.9 乙方不履行其在本合同书所应遵守的条款时,在甲方书面通知乙方改正错误期限内,乙方仍未改正,情节严重的甲方有权单方解除合同,收回场地,乙方的履约保证金及已缴付的租金不予返还。乙方须承担违约责任并赔偿因此对甲方造成的损失。

7.2.10 乙方使用的营业员工作人员须持证上岗(如需)。如乙方因服务态度或商品质量问题被社会新闻媒体曝光,甲方有权要求乙方停业整顿,情节严重的,甲方有权解除本合同,乙方应承担因此给甲方造成的一切损失。

7.2.11 乙方应建立和完善安全生产责任制度,建立安全生产保证体系,防止责任事故发生。乙方应为其雇员、代表或合法委托人提供适当的安全培训,包括参加甲方组织的安全培训课程,甲方有权按该课程的培训成本向乙方收取适当的费用。  

7.2.12 乙方在经营中产生的所有非甲方原因的安全责任事故的后果由乙方承担,如政府相关部门对此进行处罚的,由乙方承担。如甲方因此受政府相关部门处罚的,有权向乙方追偿并追究其违约责任。

7.2.13 在合同履行期间,乙方须服从轨道交通运营管理,车站出现紧急应急情况下,乙方有义务配合轨道交通运营部门做好相应的应急处置工作。

7.2.14 甲方有权进入该场地进行维修、保养或其他与该场地相关的事项,并采取一切相关的合理技术措施(但应尽量避免给乙方及其营业造成影响)。乙方不得因此向甲方提出营业损失、营业场地占用、人员加班费或任何形式的补偿或赔偿要求。

7.2.15 乙方应自费办理场地装修期间所有相关的保险事宜,并完全承担因施工所导致的一切人身财产损失。在租赁期内,乙方应对由其导致的任何第三方财产损失或/及人身伤亡购买相应的保险,若有关的保险的赔偿金不足以(或不能)赔偿受损方的损失,剩余部分全部由乙方承担。

7.2.16爱护租赁场地及附属设施,自行承担租赁场地及场地内原有设施(含水电管线、水电设施)及乙方新增设施的养护、维修责任及费用(属于租赁场地主体结构出现的大修情况除外);如是由于乙方的原因导致租赁场地出现结构安全问题而需要大修时,由乙方自行承担大修的责任及费用。乙方拒不维修的,甲方可代为维修或委托第三方维修,维修费用由乙方承担;乙方逾期支付的,甲方有权解除合同。

7.2.17 乙方对租赁场地进行用电、给排水、照明、通风、空调等设施安装的,由乙方自行申请办理报装手续及承担相关费用,甲方予以配合协助。

7.2.18 乙方应安全合理的使用和爱护租赁场地及甲方提供的各项设施,防止不正常损坏(正常磨损、折旧除外)。因乙方使用不当导致租赁场地出现损坏或发生故障,乙方应负责及时维修,乙方经甲方通知后拒不维修或拖延维修,甲方可代为维修,维修费用由乙方承担。

7.2.19 乙方违约时,甲方有权采取包括但不限于停电、封门等方式要求乙方停止违约行为直至违约行为终止,甲方采取上述方式期间的租金仍应计算。

8条  合同的变更、解除与终止

8.1除本合同另有约定外,本合同的变更、补充或解除,须经甲、乙双方协商一致后,签署书面协议,方能生效。

    有下列情形之一的,甲方有权单方提前解除本合同,且不返还乙方的履约保证金、租金等一切已缴付的费用,同时收回乙方租赁场地,给甲方造成的损失超出履约保证金部分有权向乙方索赔。

    8.1.1 乙方在合同签订之日起30日内未缴纳租金、履约保证金等相关费用;

    8.1.2 乙方在租赁期内,延迟缴纳租金、水电费用等超过30日的(其中水电费用自收到缴费通知单之日起算),或延迟缴纳此类费用累计达3次及以上以上的;

    8.1.3 乙方未经甲方书面同意,变更经营品牌、经营项目或超范围经营(乙方按甲方要求做出限期整改的除外);

    8.1.4 乙方因严重违反国家有关政策、法令,而被国家行政机关处罚或责令停业;

8.1.5 乙方未经甲方书面同意,擅自对所租赁的场地进行结构改造、装修;

    8.1.6 乙方在租赁期内,擅自将租赁的经营场地及设施设备进行任何形式的转租、分租、转让、转借、调换、合作经营或联营,或对外实施抵押、担保、处分;

    8.1.7 乙方未经甲方同意擅自发布与自身经营无关的广告;

    8.1.8 乙方严重违反本合同附件所规定的相关条款,造成本合同无法继续履行或造成双方完全丧失信任及完全丧失合作基础的;  

    8.1.9 乙方在租赁期内,同一违约条款(包括合同附件相关规定)收到甲方开出的“违约整改通知单”达3次及以上的;

    8.1.10乙方无论被强迫或自愿破产、进入破产清算程序、进行清算(经甲方批准为了重组、合并的目的除外)、被接管人接收;

    8.1.11乙方提出退租且未经甲方同意的或乙方严重违反本合同其它约定或法律规定。

    8.2本合同项下之租赁期限届满或本合同因任何原因而终止后10日内,乙方须将该场地按合同约定交还甲方。该期限为本合同项下该场地之交还期,交还期内,乙方无需支付租金,但仍应当承担在此期间发生的用电等各项费用。若乙方不按甲方要求的条件交还场地,甲方有权自行收回处置,因此产生的一切不利后果均由乙方承担,甲方有权从履约保证金扣除因此发生的费用。

    8.3无论任何原因,交还期满后乙方仍未能将符合前述约定交还条件的该租赁场地交还甲方的,则自交还期届满之日的次日起,乙方应当按照合同终止时该场地租金标准的双倍向甲方支付场地使用费,并支付按照合同终止时该场地的用电等费用,直至乙方按照合同要求交还该场地为止。如因此造成甲方延迟向新租户交付该场地而需承担违约金等费用,以及造成甲方其它损失的,乙方均应全额赔偿。

    8.4自交还期届满之日的次日起,甲方有权采取对该场地停止电等供应、控制人员从场地进出、阻止乙方继续开业经营等强制措施。此种情况下,乙方所应承担的场地租金及其它相关费用并不因此而得到减免。

8.5双方确认完成交还手续后,乙方在该场地内遗留的任何设施设备、物品等均视为乙方放弃一切权利,甲方有权自行处置(产生的处置费用从履约保证金中扣除),乙方不得提出任何要求和赔偿,且乙方未经甲方同意无权再进入该场地。

8.6租赁期内乙方若提前退租,需在租赁期满前3个月向甲方提出书面申请,经过甲方同意后方可退租,双方均不承担违约责任。

9条  违约责任

    9.1乙方在合同期内如逾期支付租金和其它应缴费用,须向甲方支付违约金。从迟交日起,逾期支付租金的,每逾期一日,乙方应按照逾期应支付金额的1‰向甲方支付违约金;逾期支付其它应缴费用的,则每逾期一日,甲方按实际应收款的1‰向乙方收取滞纳金。

    9.2如乙方违反合同约定,则赔偿甲方因此而遭受的全部损失,同时甲方有权单方终止合同。

    9.3未经甲方书面同意擅自扩大或变更经营范围,除责令乙方限期整改外,同时甲方保留单方面解除本合同的权利。

    9.4乙方延迟缴纳租金、电费用或其他应付费用超过30日,经甲方书面催告,乙方仍不缴纳的,甲方可以对该场地暂停部分或全部电供应或其他管理服务,直至乙方履行相关付款义务为止。甲方无需因此向乙方或第三方承担任何责任。甲方因此受到第三方索赔的,则甲方有权向乙方追偿损失。

10条  免责条款

    10.1合同期内,如因政府部门、轨道交通运营需要发出的收回租赁场地、改变场地用途、禁止进入、场地征用等通知,而造成租赁场地租赁场地撤销、搬迁、基建维修或经营方式调整,甲方应及时通知乙方,乙方应无条件服从,双方互不承担违约责任。

    10.2因不可抗力导致甲乙双方或一方不能履行或不能完全履行签订本合同项下有关义务时,甲乙双方相互不承担违约责任。但遇不可抗力的一方或双方应于不可抗力发生后15日内将情况告知对方,并提供有关证明。在不可抗力影响消除后的合理时间内,一方或双方应当继续履行合同。

    10.3如因政府及相关部门条令、政策变化等因素,不允许在轨道交通所属范围内经营该业态,本合同将自动终止,给双方造成损失的,双方互不承担违约责任。

10.4鉴于轨道交通经营环境的特殊性,如因客流疏散、安防设备设置等涉及轨道交通运营安全的原因,需取消部分经营区域,乙方应无条件服从,双方互不承担违约责任。

10.5乙方在完成开业准备工作后,如需消防部门验收审批的,由乙方自行办理,若最终消防部门因非乙方原因要求取消商业的,经甲方同意乙方在结清相关费用后可办理退租手续,甲方不承担任何责任。因乙方装修或经营活动不符合消防要求的,乙方应按要求整改直至满足消防要求,由此发生的相关费用由乙方自行承担。

    10.6因上述10.1-10.5款原因而终止合同的,租金及应缴费用按照实际租赁时间计算,不足整月的按天数计算。

10.7如因甲方原因发生有重大活动、突发客流拥堵、消防等影响到轨道交通和公共安全,需要紧急疏散客流的情况下,影响到本合同项下经营区域正常营业,或需临时全部或部分关闭的,乙方应无条件配合。若每天停止营业时间达到8小时及以上的,乙方可向甲方提出申请,甲方确认后可免除当日租金,免除的租金从下一期应缴租金中直接扣除。除此约定外,甲方不作任何补偿或赔偿。

    10.8不可抗力系指“发生了合同当事人无法预见、无法预防、无法避免和无法控制的事件”,主要包括自然灾害,政府行为,社会异常事件。

    10.9甲方无须对由非甲方之故意或过失而导致的包括但不限于以下事件在内的各类事件而引起的任何后果向乙方及其雇员、访客及授权人士承担任何赔偿及其它法律责任:

    10.9.1 租赁场地内发生火灾、水淹、触电或爆恐袭击等引发的后果;

    10.9.2 租赁场地内发生失窃及遭受破坏;

    10.9.3 其它超越甲方管辖范围的(如停电、限电、停水、停运等)或在甲方合理的经营、控制、预防措施范围以外或意外等事件引起的损害。

10.10如甲方运营时间调整(包含暂定的轨道交通试运营时间),租金、租期不变,租金以甲方移交场地次日起满3个月的次日起开始计算,甲方不承担违约责任。

10.11甲方因维修养护与租赁场地相关的公用部位、公用设施设备而需要停水、停电、停止公用设施设备使用(包括有关部门临时停电、停水等事项),乙方有义务配合,且甲方无须承担补偿或赔偿责任。

11条  通知及送达

    11.1甲方和乙方按以下地址发送通知:

甲方地址:                         

邮政编码:                   联系电话:                

电子邮箱:                           

乙方地址:                                     

     人:                

    邮政编码:                    联系电话:                  

    电子邮箱:                          

    11.2 确定甲方有效送达的方式包括但不限于:

    11.2.1 经专人送达的函件应于专人送交(包括乙方或乙方员工)当日视为有效送达;

    11.2.2 按乙方通知地址经邮件(快递)发出的函件应于寄出日第三日(不论是否退件)视为有效送达;

    11.2.3 经传真或电子邮箱发出的函件应于传送当日视为有效送达;

    11.2.4 在乙方承租的租赁物处张贴通知视为有效送达;

    11.2.5 在公开媒体刊登公告等。

    11.3 一方若地址变更,须及时以书面形式通知另一方。怠于通知的一方应当承担对其不利的法律后果。

12条  争议的解决

    本合同履行过程中,双方如发生争议,应友好协商解决。协商不成的,可向甲方所在地有管辖权的人民法院提起诉讼。

13条  合同的生效及其他

    13.1本合同经甲、乙双方法定代表人(或授权代表)签名、盖章、并经合肥市公共资源交易监督管理局备案后生效。

13.2 本合同附件及甲方在经营管理过程中制定的管理办法、相关规定等构成合同的一部分,乙方必须遵照执行,与本合同具有同等法律效力,如与本合同有冲突时,以本合同为准。

13.3本合同壹式     份,其中正本  份,甲乙双方各执     份,副本      份,甲方执     份,乙方执     份,肥市产权交易中心留存  份,每份合同具有同等的法律效力。

 

14条 附件

14.1 附件1:附属用房范围内租赁场地(S2商铺)位置图示

    14.2 附件2:安全管理协议书

14.3 附件3:廉政协议

14.4 附件4:银行履约保函

14.5 附件5:承诺函

  

甲方:(盖章)                          乙方:(盖章)

法定代表人                              法定代表人

或授权代表:(签字)                    或授权代表:(签字)

2021年   月    日                       2021 年   月     

附件1:

附属用房范围内租赁场地(S2商铺)位置图示

 




 附件2:

安全管理协议书

甲方(全称):                           

乙方(全称):                           

甲乙双方签订《        》(合同编号:      ,以下简称“原合同”),为明确职责,强化责任,切实做好生产经营、消防安全工作,预防各类安全、火灾事故发生,根据安全生产法、消防法律法规及安徽省、合肥市轨道交通管理法规、规章和规范性文件等有关规定,特制订本协议书以明确双方责任。

一、协议时效

自本协议签订之日起原合同终止之日止。

二、责任区域

按原合同约定乙方承租或使用、管理的物业、场地、设施设备、线路等为乙方的生产经营、消防安全责任区域。

三、责任目标

(一)甲方权责

   1、甲方有权对乙方进行各项安全督查,并对乙方安全隐患提出整改要求,督促其整改。

   2、甲方有权制止乙方违反安全、消防管理规定的行为。

   3、如乙方违反本协议规定,甲方有权要求乙方限期整改,乙方应按要求完成整改工作;如乙方未能在限定的期限内按照要求完成整改,甲方将保留对乙方采取停业整改以及其他必要措施的权力。

   4、甲方有权要求乙方参加甲方组织的消防等安全知识学习和演习,如乙方无故缺席,有权对乙方按本协议第四条违约责任作出相应处罚。

   5、甲方指定乙方的法定代表人或负责人为所承租的经营场地安全管理责任人,乙方应接受任命,同时要指定属下各级安全管理人员并明确相关职责。

(二)乙方权责

    1、乙方必须自觉遵守执行国家有关安全生产管理、消防法律法规和有关消防安全管理规定。接受消防、安监等管理部门和甲方的安全管理监督、指导、检查,如有整改要求,必须认真执行。

    2、乙方对承租范围内的各种消防设施和器材负有保护责任,任何人不能用任何方式遮盖、涂改、弃置及挪动、损毁、破坏等,如出现人为损坏和遗失现象,必须及时更换补充或按价赔偿。

    3、乙方如违反国家、省、市的安全生产、消防安全法规,不遵守甲方制定的安全管理规定,甲方视情况有权对乙方作出解除原合同的处理;因此导致发生事故,乙方承担全部责任。

    4、乙方在租赁期必须指定至少一名安全员并报甲方备案,全面负责生产经营、消防安全工作,如有人员变更,应重新报甲方备案。乙方每年至少要组织1次消防安全培训,并作好记录供甲方抽查。

5、乙方员工上岗前必须经过安全、消防等知识的培训,熟练掌握灭火器的使用和安全用电知识,熟悉各安全出口和消防设施的位置。甲方相关管理人员有权对乙方员工随时抽查安全管理知识,对抽查不合格的人员,有权要求重新培训。

    6、乙方在经营期间应遵守以下规定:

    6.1乙方必须按有关消防规定配备足够数量的灭火器、消防安全设施等,以保证各项商业经营活动的安全。不得携带易燃易爆品等进入租赁区域内。

    6.2严禁在经营场地内加工、生产、储存、销售易燃易爆物品和危险化学品。

    6.3 保管好本经营场地内的商品销售票据、印章、贵重物品,必要时加钥保管,钥匙要有专人保管,做好班前、班后的安全检查、清点和交接工作。

    6.4 乙方经营场地(商铺)营业结束后,必须将所有的柜灯等照明关闭,插座卸下,垃圾带出营业场地,放到指定位置,以确保安全。

    6.5 承租范围内严禁吸烟,甲方如发现乙方员工抽烟,有权要求乙方调换该员工。

    6.6因更改布局、装修改造工程需要使用明火,乙方必须向甲方申报,经甲方批准后方可施工。营业中需要使用的电热设备(如烘烤器皿等),应报甲方相关部门审核并备案,同意后方可使用。设专人负责管理,防止发生火灾及其他意外。

    6.7开展有针对性的消防应急演练,配合甲方开展消防应急演练。配合安全疏散,及时通知甲方,及时救助受伤人员并保护现场。

6.8乙方经营过程中必须保障经营范围内疏散通道、安全出口、消防车通道畅通;服从配合甲方或者甲方指定的负责人对共用的疏散通道、安全出口、建筑消防设施和消防车通道的管理;保证防火防烟分区、防火间距符合消防技术标准。

   7、乙方应不定期组织并做好对责任范围内设备设施和各种器材的维护保养,确保有效正常运转,重点部位应加强检查。

四、违约责任

   1、一方因未履行消防安全责任,发生消防安全事故,造成对方损失的,应承担相应责任。

   2、乙方如有违反本协议或原合同及甲方制定的相关管理规定,按其相应的违约条款进行处罚。未涉及条款的甲方有权按以下方式进行处罚:

   2.1发放《违约整改通知单》,限期整改,并从履约保证金中支付违约金200元至2000元;限期整改后仍达不到要求的,责令停业整顿(停业期间业主有权停电),直到满足要求才能营业。

  2.2一年内停业整顿三次以上的,甲方有权无条件提前终止原合同。

 

 

甲方:(盖章)                    乙方:(盖章)             

法定代表人或                     法定代表人或

授权代理人:(签字)             授权代理人:(签字)                            

2021年   月    日               2021年   月    日  

 


 附件3:  

为促进双方诚信经营、廉洁从业,防范商业贿赂,保护国家、集体和当事人的合法权益,根据国家有关法律法规和安徽省、合肥市廉政建设的规定,合肥市轨道交通集团有限公司(以下称甲方)与           (以下称乙方),特此订立本协议共同遵照执行。

第一条甲乙双方的权利和义务

(一)甲乙双方自觉遵守《中华人民共和国反不正当竞争法》、国家工商行政管理局《关于禁止商业贿赂行为的暂行规定》、国家最高人民检察院、最高人民法院《关于办理受贿刑事案件适用法律若干问题的意见》及相关法律法规和廉政建设的规定。

(二)严格执行                       的合同要求,自觉履行合同约定的相关义务。

(三)在业务活动中坚持公开、公正、诚信、透明的原则,不得损害国家、集体利益。

(四)建立健全廉政制度,开展廉政教育,公布举报电话,监督并认真查处违法违纪行为。

(五)发现对方在业务活动中有违反廉政规定的行为,应及时提醒对方纠正。情节严重的,应向其上级有关部门举报、建议给予处理,并有权要求告知处理结果。

第二条 甲方的义务

(一)甲方及其工作人员不得索要或接受乙方的礼金、有价证券和贵重物品,不得在乙方报销任何应由甲方单位或个人支付的费用等。

(二)甲方工作人员不得参加乙方安排的可能影响相关业务公开、公正、公平性的宴请和娱乐活动;不得参与任何形式的赌博,严禁通过赌博方式取得乙方及其工作人员的财物;不得接受乙方提供的通讯工具和高档办公用品等。

(三)甲方及其工作人员不得要求或者接受乙方为其住房装修、婚丧嫁娶活动、配偶子女工作安排以及出国出境、旅游等提供方便。

(四)甲方工作人员不得在乙方有股权关联的企业兼职,不得向乙方介绍家属或者亲友从事与甲方业务有关的经济活动。

(五)甲方工作人员不得以明显低于市场的价格向乙方购买房屋、汽车等物品;不得以明显高于市场的价格向乙方出售房屋、汽车等物品;不得以其他交易形式非法收受请托人财物。

(六)甲方工作人员不得利用职务之便收受乙方以回扣、手续费、加班费、咨询费、劳务费、协调费、辛苦费等各种名义给予或赠送的钱物。

(七)甲方工作人员不得接受乙方给予或赠送的干股或红利。

(八)甲方任何人不得以个人的名义向乙方推荐设备、部件等供货商以及其它合作单位。

第三条 乙方的义务

(一)乙方不得以任何理由向甲方及其工作人员行贿或馈赠礼金、有价证券、贵重礼品。

(二)乙方不得以任何名义为甲方及其工作人员报销应由甲方单位或个人支付的任何费用。

(三) 乙方不得以任何理由安排甲方工作人员参加可能影响相关业务公开、公正、公平性的宴请及娱乐活动。

(四)乙方不得为甲方单位和个人购置或提供通讯工具和高档办公用品等物品,也不得为甲方提供与工作无关的房屋、汽车等。

(五)乙方不得与甲方工作人员就合同中的质量、数量、价格、工程量、验收等条款进行私下商谈或者达成默契。

(六)乙方不得以回扣、手续费、加班费、咨询费、劳务费、协调费、辛苦费等各种名义向甲方工作人员给予或赠送钱物。

(七)乙方不得向甲方工作人员提供干股或红利。

(八)乙方须按合肥市轨道交通集团有限公司纪委的要求开展相关工作。

第四条 违约责任

(一)甲方及其工作人员违反本协议第一、二条规定。甲方按管理权限,对相关责任人依据有关规定给予党纪、政务处分或组织处理;涉嫌犯罪的,移交司法机关追究刑事责任;给乙方单位造成经济损失的,应予以赔偿。

投诉联系部门:合肥市轨道交通集团有限公司纪检监察室,联系电话:0551-62662852。

(二)乙方及其工作人员违反本协议第一、三条规定。根据具体情节和造成的后果,甲方有权依据法律法规及合同约定对乙方采取以下一种或多种处理办法:

1、向建设行政部门、招投标管理部门及乙方上级主管部门通报,建议作出相应处理;

2、甲方有权扣除乙方履约保证金全部或部分(视情节严重性而定);

3、乙方一定期限内(6个月至5年,具体由甲方根据情况而定)不得参与甲方作为发包人(业主)的工程项目投标;

4、终止或解除双方已签订的包括(不限于)本合同在内的所有合同。

甲方作出的处理意见,乙方应无条件接受并承担给甲方造成的损失,全额返还通过不正当手段从甲方获取的非法所得,并承担相应的法律责任。

第五条 双方约定

本协议由双方或双方上级单位负责监督。可由甲方或甲方上级单位的纪检监察部门约请乙方或乙方上级单位的纪检监察部门对本协议履行情况进行检查,提出在本协议规定范围内的裁定意见。

第六条  本协议有效期为甲乙双方签署之日起至                       合同终止。  

第七条  本协议作为                       合同的附件,与本合同具有同等法律效力。

 

甲方(盖章):                         乙方(盖章):

法定代表人或                        法定代表人或

授权代表:          (职务)             授权代表:          (职务)

姓名                                 姓名

签字:                                 签字:

廉政监督联系人                         廉政监督联系人

姓名                                   姓名

签字:                                 签字:

电话:0551-62662852                    电话:

日期:2021年  月  日                  日期:2021年  月  日
附件4:          

保函号:

致:合肥市轨道交通集团有限公司(受益人)

鉴于:你公司与             (以下简称“承包人”)签订             合同(以下称“主合同”),你公司在合同中要求承包人向你公司提交下述金额的经银行开具的履约保函,作为承包人履行主合同责任的担保。

1、我行同意为承包人开具本保函,向你公司承担金额不超过人民币(大写)     (¥:)的担保责任。本保函效力独立于主合同。

2、在你公司书面提出要求得到上述金额范围内的任何款项后7日内,我行即无条件予以支付,且不要求你公司出具证明或说明背景、理由。

    3、我行放弃你公司应先向承包人要求赔偿上述金额然后再向我行提出要求的权利。

4、我行同意:无论主合同及/或与主合同相关事项发生何变化,我行承担本保函的责任也不改变,有关上述变化也无须通知我行。

5、本保函不可撤销,不得承租。

6、本保函项下的所有权利、义务、责任适用中华人民共和国法律。

7、有关本保函的一切争议由主合同项目所在地法院管辖。

8、本保函自银行签字盖章之日起生效至_________ 一直有效。本保函到期自动失效,无需返还正本给我行,受益人可自行处置。

银行名称:                    (盖章)

法定代表人/授权代理人:       (签字)

   址:             

   期: